Hayhurst & Co Architects
H&Co
Menu
Projects
Practice
News
Contact
Projects
Selected
Homes
Schools
Public
Practice
Profile
People
Awards
Publications
News
Contact
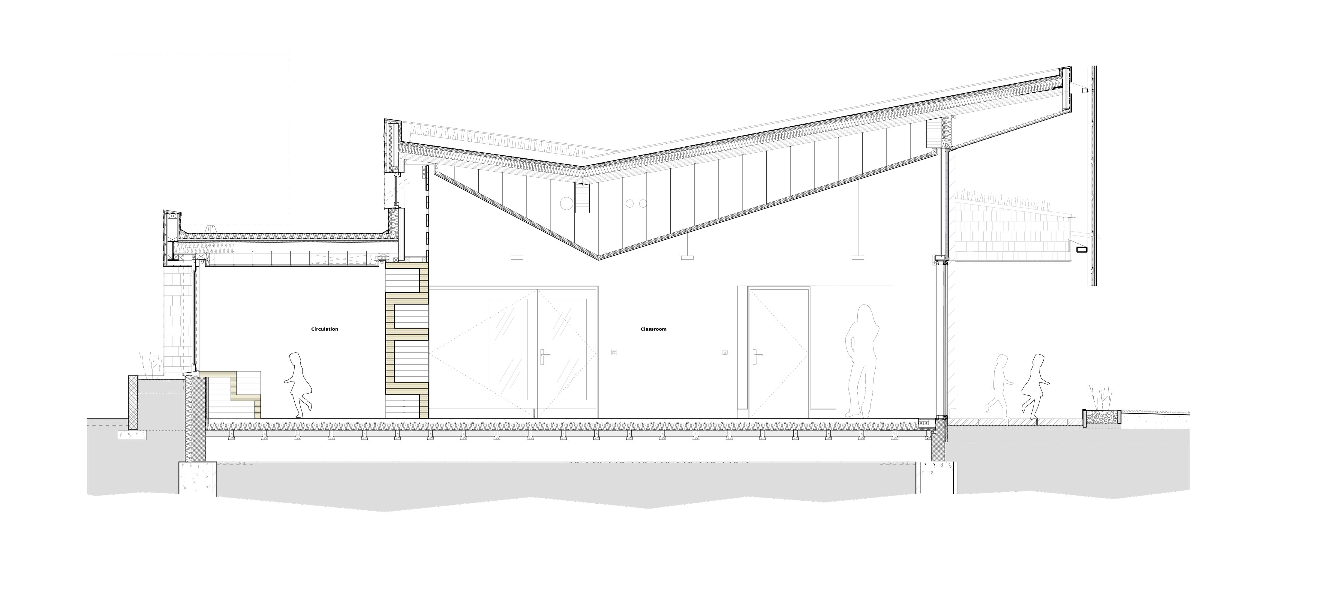
090_-Detailed-Section-
30/01/2018
4419 × 2000
Hayes Primary School
Previous Image
Next Image
Comments are closed.