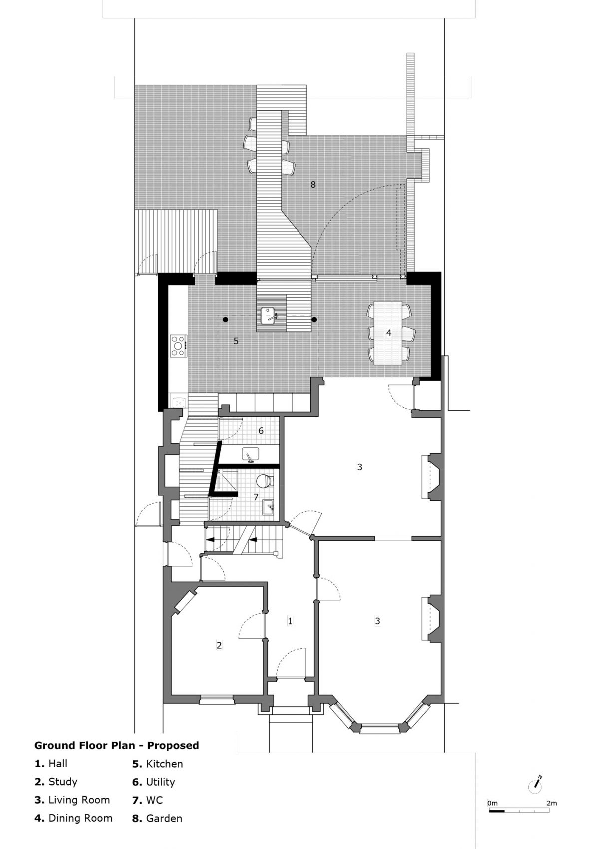
Our proposal to bring new life into this suburban, 4-bedroom house in East London involved replacing its Victorian, cellular arrangement of spaces with a new connected dynamic between inside and outdoor space suitable for a young family. The starting point of the design was the placement of a single material into the site – a black brick tray; a room laid into the garden against the grain of the existing Victorian House.
Conceptually, the walls and floor of the new black brick tray were then carved away to create connections between the inside of the house and the garden; expanding the garden in to the house and the kitchen into the garden. The openings in the ‘tray’ were controlled to reveal glimpses of the black brick from the inside and the delicate outline of the newly-formed openings in the Victorian house from the outside.