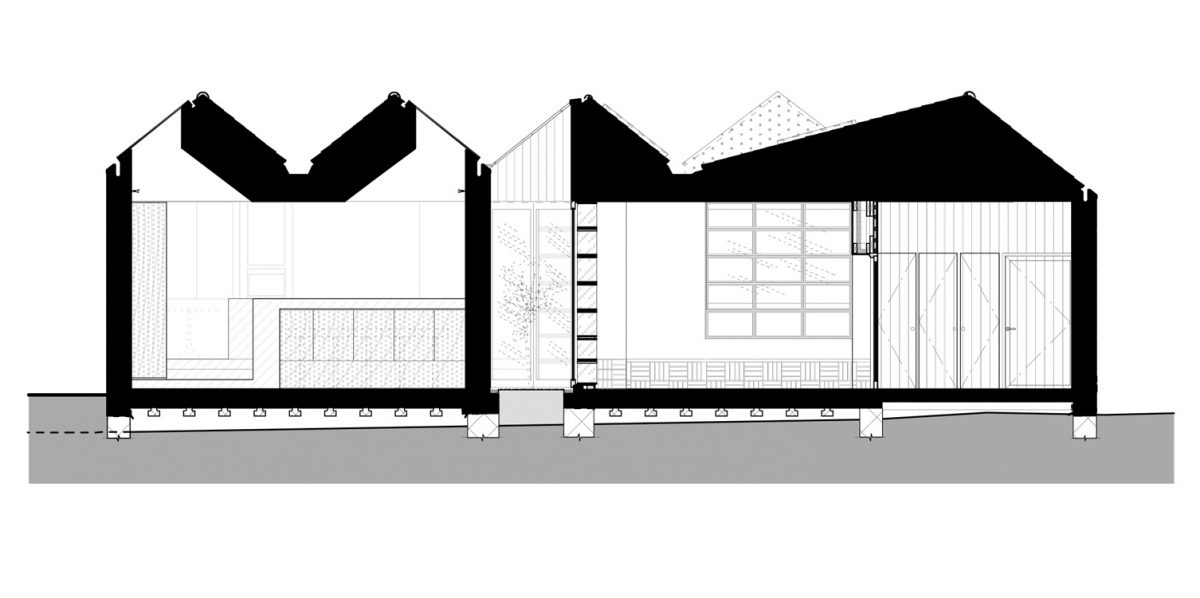
The brief for the conversion of this house in the Snaresbrook Conservation Area, centred around removing the cellular division of cooking, dining and living spaces on the ground floor and provide an unobstructed open-plan extension with a stepped relationship to a terrace and to the large rear garden. The designs provide intimate spaces that allow the family to be within a single room but able to engage in separate activities.
The design opens up and extends the rear of the house to provide differing levels of physical and visual permeability, openness and intimacy. Formally, the design mimics and reinterprets the pitched roof of the original building creating a unique form that belies the extension’s scale. Projecting canopies, cantilevered eaves and a staggered plan, enclose spaces that embrace the programmes and patterns of modern family life.