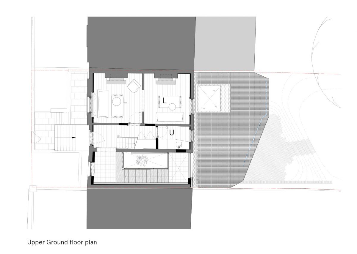
Grain House is a remodelled and extended Victorian, semi-detached property in the de Beauvoir Conservation Area in Hackney, north London. Designed for a young family, the house connects original and new living spaces and creates a visual link from the entrance, through the family spaces to the garden and on to the new artist’s studio at the back of the site.
Prior to the works, the house was arranged as a series of small, cellular spaces with only a narrow ‘servant’s stair’ connecting the living spaces on the lower and upper ground floors. Then new design dramatically reconnects these living spaces with the creation of a 2-storey courtyard at the heart of the house that is home to a new Japanese privet tree and a sculpture by Annie Morris.