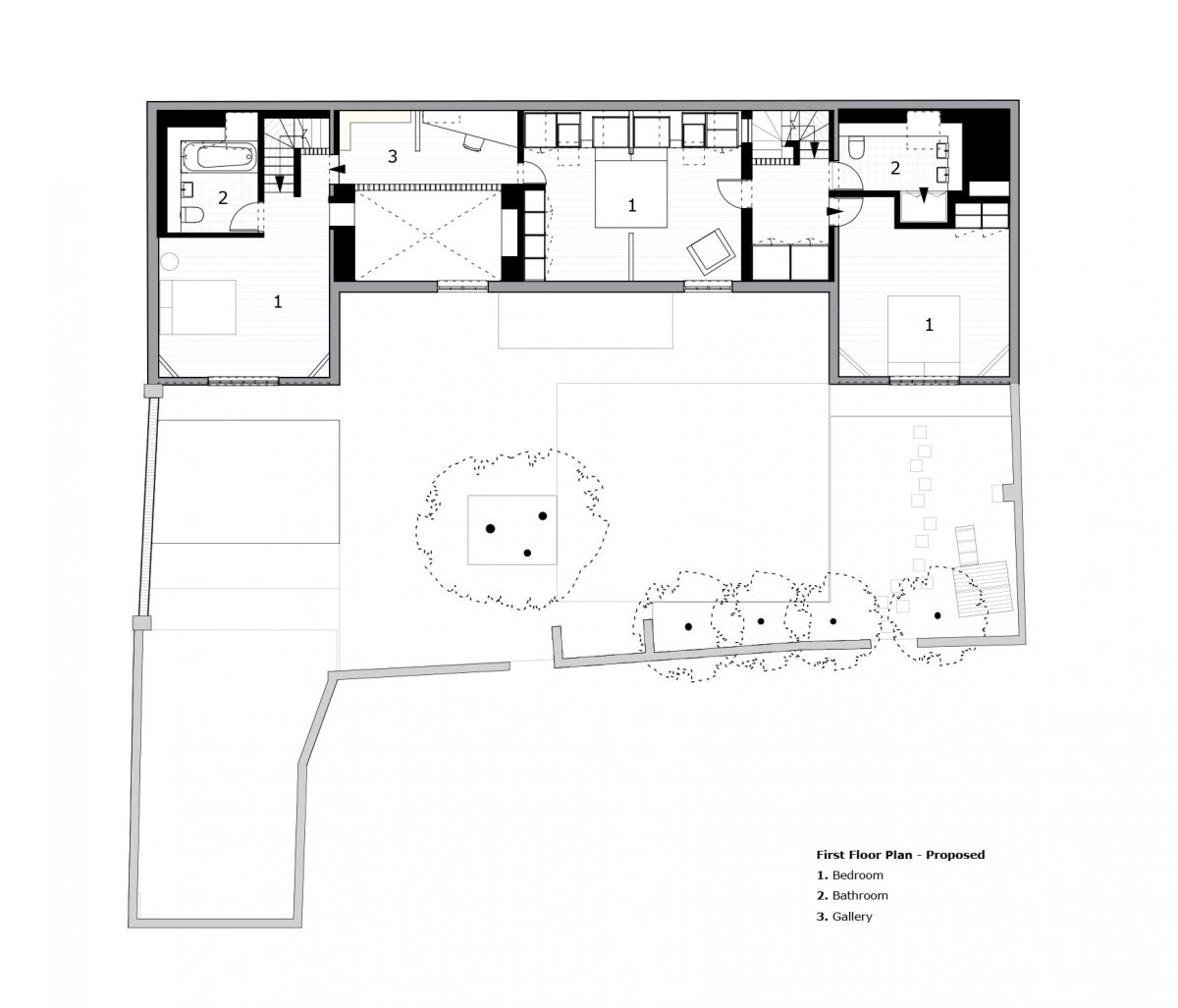
Barn-ish, Brighton-ish is an internal refurbishment of a Grade-II listed Coach House in Hurstpierpoint, West Sussex. Historically, the Coach House served the adjacent buildings on the High Street and in the early 1980s, was converted into residential and light commercial uses.
The property was bought by it’s current owners in late 2013 who were keen to convert the garages and workshops into residential use and to create a new 4-bedroomed family home. They were also keen to create a private garden area in the Coach House’s old forecourt.