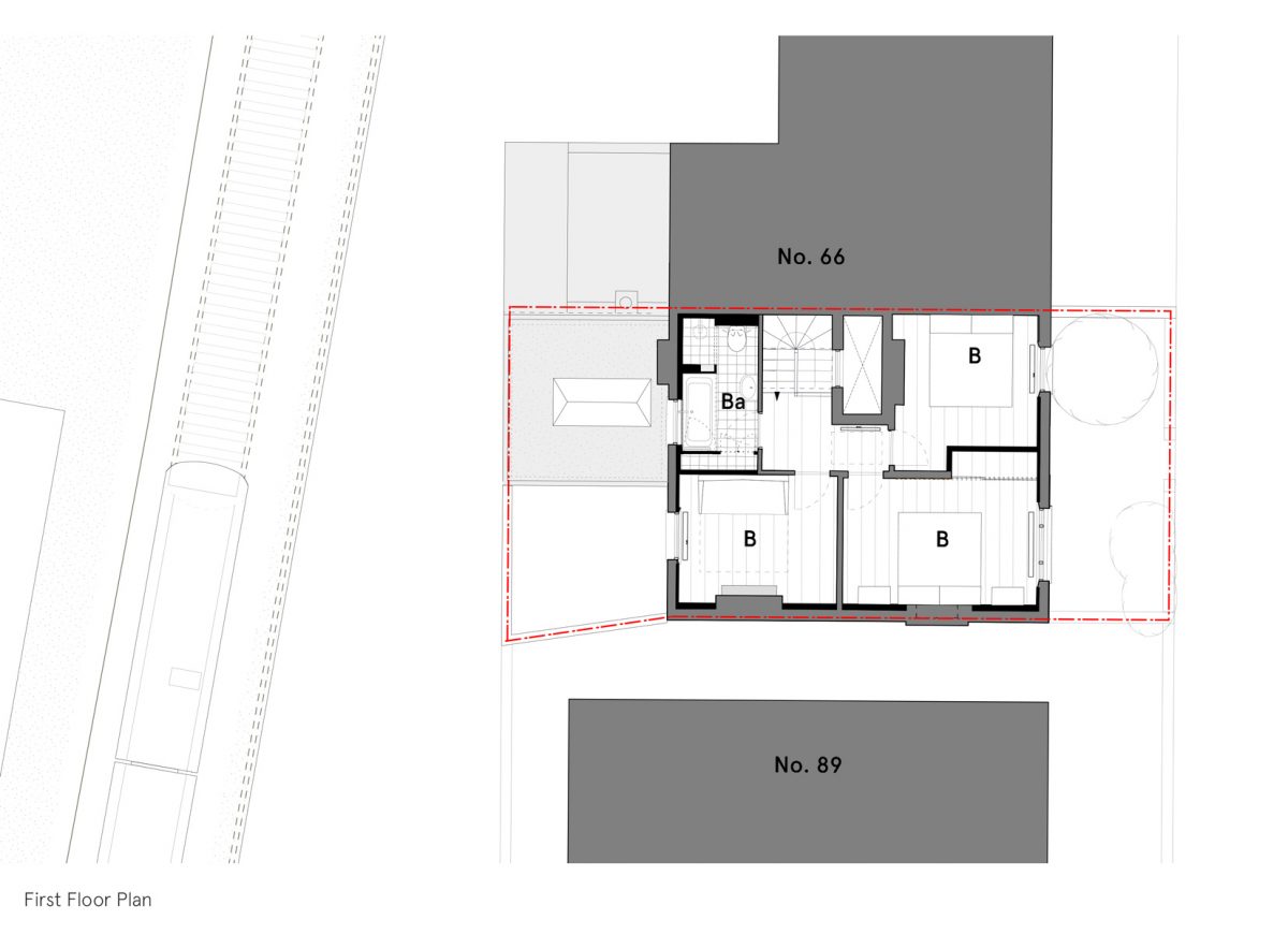
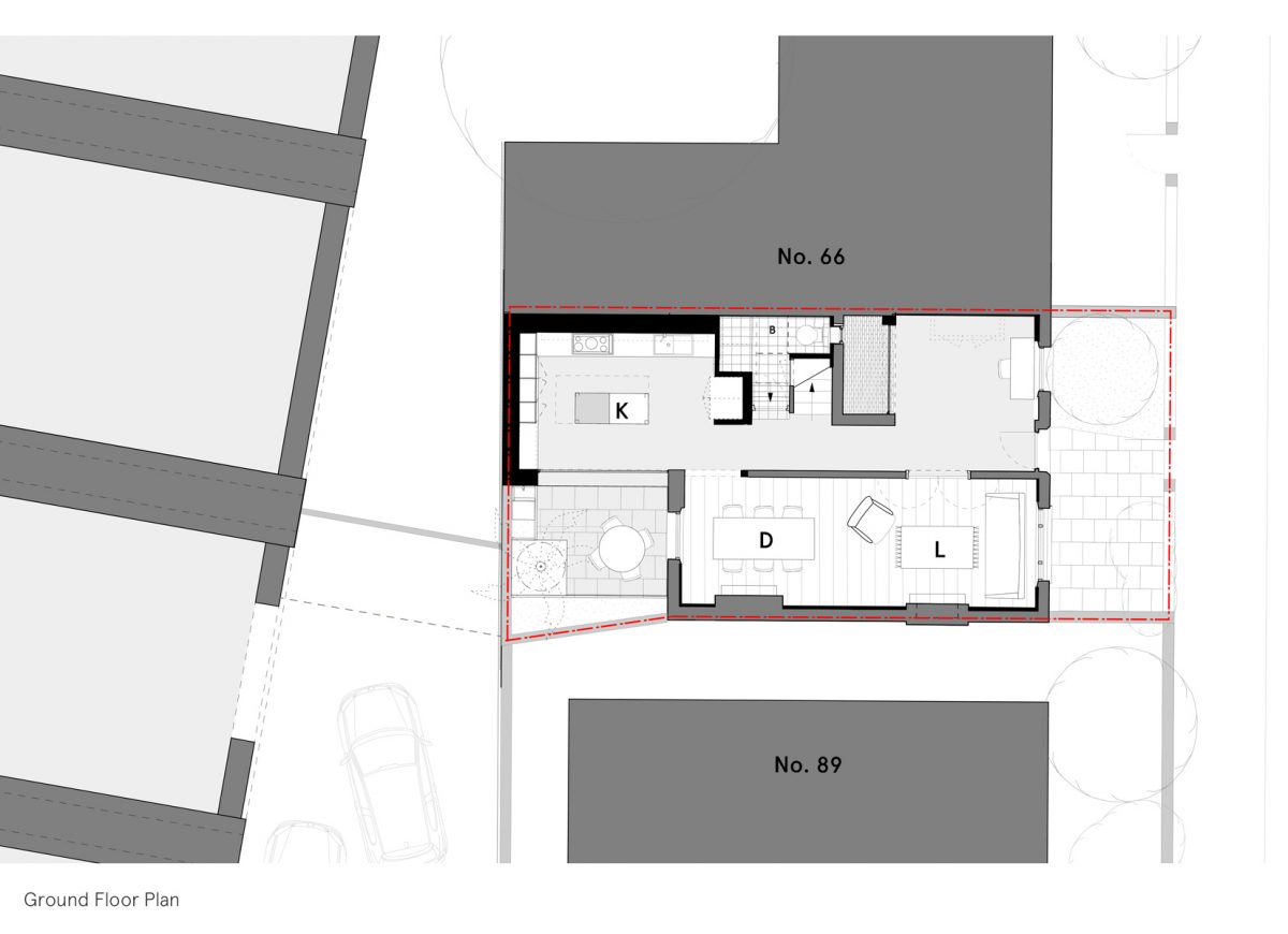
Reputedly the station master’s house for Peckham Rye station, this property is a creative example of Victorian residential infill development; squeezed into the back gardens of two early Victorian houses and onto the side of a Georgian house.
The house built in 1864 breaks from the typical Victorian pattern of a straight stair off the entrance with a bespoke plan that sets the house around a central lightwell, which maintained daylight to its neighbour’s existing side windows.